Architekturentwurf: Weißer Aufbau auf dem Akademiegebäude, Sicht von Innenhof aus

Ein neuer Flügel für die Akademie

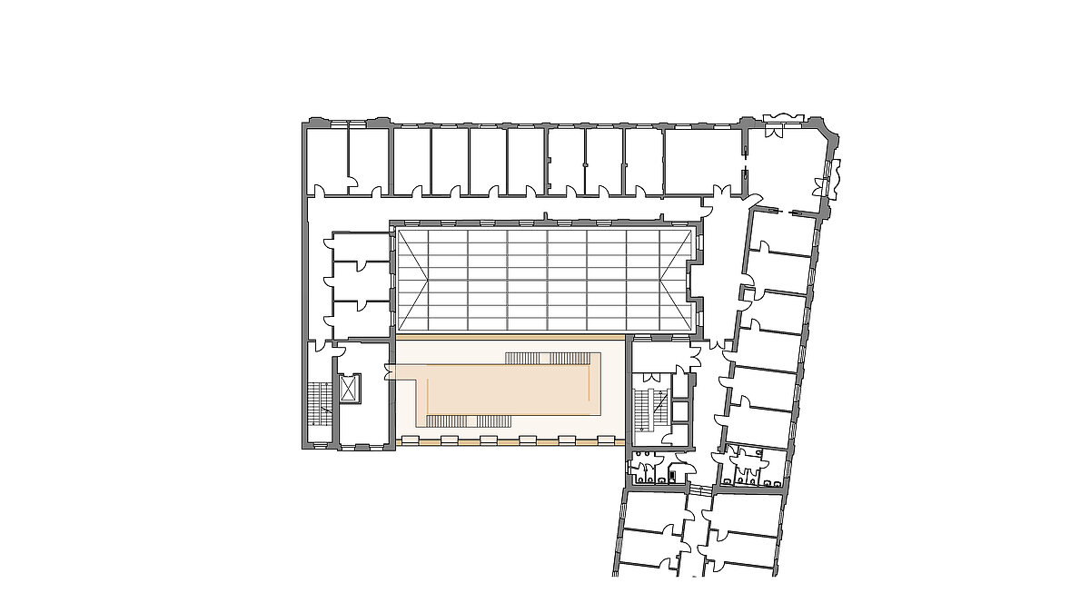
Situation

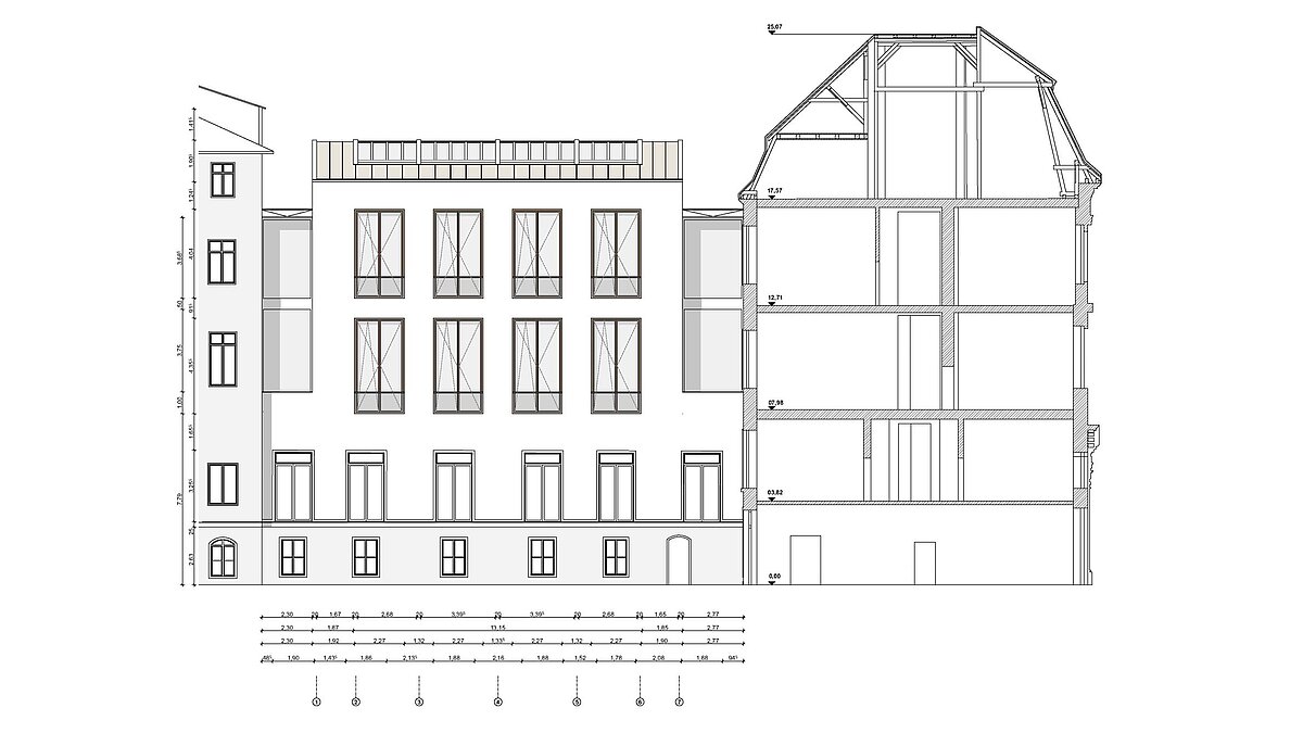
Das Hauptgebäude der Akademie am Gendarmenmarkt wurde für die Preußische Seehandlung, die zugleich Staatsbank war, errichtet, in den dreißiger Jahren erweitert und im Krieg teilweise zerstört. Seit 1945 wird es von der Akademie genutzt. Der historische Ostflügel der Seehandlung wurde nur einstöckig wiedererrichtet und mit einer Dachterrasse versehen. Der Anblick wirkt heute nicht einladend, die Terrasse wird nur sporadisch genutzt. Hier ist Raum für Erweiterung.

Bedarf

Die Akademie ist ein beliebter Ort für wissenschaftliche Tagungen im Herzen Berlins. Die attraktiven Räume werden sowohl für eigene Veranstaltungen genutzt als auch an Dritte vermietet. Nutzung und Nachfrage sind hoch, daher besteht Bedarf an zusätzlichen Konferenzräumen. In der Akademie soll ein Ort geschaffen werden, an dem Mitglieder, Beschäftigte und Gäste der Akademie sowie der ganzen Berliner Wissenschaft, der Universitäten und außeruniversitären Forschung, mit der Stadtgesellschaft in angenehmer Atmosphäre Gespräche führen oder sich zu konzentrierter Arbeit in die Wissenschaftslounge zurückziehen können.

Idee

Um an zentraler Stelle Konferenzräume und eine Lounge zu schaffen, soll ein neuer Mittelflügel entstehen, der im zweiten und dritten Obergeschoss (OG) an die Flure und Treppenhäuser des Altbaus anschließt. Er soll im zweiten OG Konferenzräume aufnehmen, mit dem historischen Säulensaal als repräsentativem Foyer für Empfänge. Im dritten OG ist die Wissenschaftslounge geplant, die mit bequemen Sitzmöbeln und Kunstwerken aus dem Bestand der Akademie ausgestattet wird.

Bauen Sie mit: Die Bau- und Planungskosten in Höhe von ca. 3 Mio. Euro werden ausschließlich durch private Spenden finanziert. Zwei Drittel der prognostizierten Kosten sind bereits gedeckt. Spenden Sie für die Wissenschaftslounge und lassen Sie aus einer Vision Wirklichkeit werden!

Vorschläge für eine neue Wissenschaftslounge – Entwürfe von Studierenden

70 Architektur-Studierende der Fachhochschule Potsdam entwickelten Vorschläge für eine neue Wissenschaftslounge: einen Ort der Begegnung für Mitglieder und Mitarbeitende der Akademie, für Stadtgesellschaft und Gäste aus Wissenschaft, Politik, Wirtschaft und Kultur. Die Entwürfe, von denen hier eine Auswahl präsentiert wird, zeigen sehr verschiedene funktionale, konstruktive und gestalterische Lösungen. Als nächster Schritt soll im Jahr 2025 ein Architekturwettbewerb durchgeführt werden, um einen realisierbaren Entwurf zu küren.

Speicher des Wissens

Als Kontrast zu den aufgereihten, kleinen Räumen des Bestandsgebäudes wird bei diesem Ent­wurf der benötigte Konferenzraum als „schwebender Raum“ in Szene gesetzt. Umgeben wird er von einer Bibliotheks-Lounge. Somit „schwebt“ der Raum förmlich im und durch das ihn umge­bende Wissen.

Die Aufstockung besteht aus einer Pfosten-Riegel-Konstruktion mit einem massiven Dachstuhl aus Leimbindern. In diesen Dachstuhl wird ein Stahl­gerüst eingehängt, um den Konferenzraum zu bilden. Die Lounge selbst wird durch die seitlich am Konferenzraum angeordneten Treppen gegliedert.

Die Fassade der Aufstockung verbindet Elemente von alten Speicher­architekturen wie beispiels­weise Stützen samt Mäuseplatten und das puristische Wellblechdach mit großformatigen Fens­tern, welche die Raumskulptur im Inneren erahnen lassen. Durch diese Fenster sowie die groß­formatigen Dach­fenster auf der gegenüberliegenden Seite wird der „schwebende“ Raum im Ver­lauf des Tages durch unterschiedliche Licht­stimmungen anders inszeniert.

Die Leitidee des Entwurfs ist eine klare Formensprache. Mit einem ruhigen, zeitgenössischen Ausdruck gliedert sich der Entwurf in die historische Umgebung ein.

Auf das Mauerwerk des Bestandsbaus erfolgt eine Aufstockung mit Wärme­dämmziegeln und einer aus Spannbeton gefertigten Decke. Der sich daraus ergebende stützenfreie Raum er­mög­licht eine freie und flexible Nutzung. Der sandfarbene Außenputz zieht sich als Faschen um die Fenster und setzt zusammen mit Fensterbänken aus Naturstein klare Akzente.

Die Fensterachsen des Bestandsgebäudes werden auf ein einheitliches Raster angepasst. Die großzügigen Fenster der beiden neuen Geschosse werden heutigen Ansprüchen gerecht. Zu­sammen mit der neu ent­stehenden Terrasse mitsamt Vordach ergibt sich eine klare Trennung von Sockelgeschoss und Auf­stockung. Die Attika schließt mit einem Gesims ab.

Das zweite Obergeschoss ist mit zwei Seminarräumen ausgestattet, welche bei Bedarf zu einem großen Raum zusammengeschaltet werden können. Sowohl die Trennwand als auch die zwei Präsentationsbildschirme sind in eine Vorwand eingebettet, um dem Raum einen hochwertigen und geordneten Charakter zu verleihen.

Im dritten Geschoss befindet sich die Lounge. Einem Bartresen und Lounge-Möbeln steht eine sich über die gesamte Wandlänge erstreckende Bücherwand aus dunklem Holz gegenüber. In Verbindung mit der indirekten Beleuchtung entsteht eine stilvolle und private Atmosphäre für Gäste, Mitglieder und Mitarbeitende.

Der Gebäudekomplex der Akademie der Wissenschaften ist ein interessantes Konstrukt aus verschiedenen Ebenen, Erschließungsräumen, Säle und Fluren. Nach Analyse des Gebäudes in seiner Umgebung und Wegstrukturen innerhalb des Komplexes wird sichtbar, dass die Verbindung durch den historischen Mittelflügel fehlt und durch Umbauten und Umnutzungen es keine zentrale Halle zum Treffen und Besprechen, aber auch zum Ankom­men gibt.

Ziel dieses Entwurfs ist genau einen solchen zentralen Punkt, ein „technisch-wissenschaftlich“ anmutendes Herz der Akademie zu schaffen, welcher einer­seits als Aushängeschild dient, aber auch zum Verweilen, Besprechen und Unterhalten einladen soll.

Durch die Wiederherstellung der historischen Treppe in der Säulenhalle ent­steht eine direkte Verbindung zum Gendarmenmarkt, über welche man durch den repräsentativen Eingang an der Markgrafenstraße direkt in die neue Halle geleitet wird.

Die neue Halle orientiert sich am jetzigen Schmuckstück der Akademie, dem Leibniz-Saal, und greift dessen Grundkonzept der Umhüllung bzw. Um­mantelung des Raums auf. So entsteht eine Hülle, welche auf einem 2,2 m x 2,2 m Raster basiert und einen ungestörten, zweistöckigen Luft­raum umgibt. Zwei sich auf den Bestand klammernde Unterzüge erlauben die Entwicklung eines unabhängigen, allumfassenden Netzes aus Stahlbetonpfeilern und Stützen.

Charakterisierend für den Entwurf sind die Verkleidung des Tragwerks mit standardisierten weißen Keramikteilen, sowie die dazwischenliegenden Schwingfenster mit weißem Milchglas, welche in geschlossenem Zustand eine nahezu sakrale Lichtstimmung erzeugen. Im Sommer können diese aber auch geöffnet werden, und es ergibt sich ein Loggia-artiger Raum, der den Blick in den Gar­ten erlaubt.

Innerhalb der Halle befindet sich nur ein einziges festes „Möbelstück“ aus Holz, welches Konferenzraum, Abstellraum, Barzeile und Sitzecken in sich vereint. Der restliche Raum kann mit flexibler Möblierung individuell angepasst werden. Der Boden und die Möblierung sind in warmen Farben gehalten, um der sakralen, wissenschaftlichen Hülle eine warme Komponente entgegen­zustellen.

Der Entwurf für die Erweiterung des Mittelflügels der Berlin-Branden­burgischen Akademie der Wissenschaften folgt der Idee, den neuen Körper gezielt vom Bestand abzugrenzen. Der Neubau hebt sich durch einen Glas­übergang vom alten Teil der bestehenden Akademie der Wissenschaf­ten deutlich ab. Zudem vermeidet der Entwurf ein Auskragen des Gebäudes zum Innenhof. Dies lässt den Baukörper als einen für sich funktionierenden Bau­abschnitt wirken. Um einen form­star­ken und konfliktfreien Übergang zwischen Fassade und Dach zu ermöglichen, erfolgt die Ent­wässerung des Daches nach innen. Die Aufstockung versteht sich als Fortsetzung des Bestands, entwickelt aber durch die neue Fassaden­gestaltung und die Glasübergänge eine eigene, neue Architektur zum Innenhof der Akademie.

Der große Glasfirst - das Hauptaugenmerk des Daches - gibt der Lounge einen besonderen Charme und flutet den Raum tagsüber mit Licht. Abends ist eine Deckenbeleuchtung mit teils versteckter Lichttechnik für eine angenehme Atmosphäre verantwortlich. Hier finden sich für Zeiten der Entspannung Sessel, wohingegen auf der anderen Seite des Raumes Stehtische platziert sind. Von hier aus eröffnet sich ein ungehinderter Blick auf das Glasdach des Leibniz-Saales. Der Holzboden schafft mit seiner dunklen Farbe eine angenehme, wohn­liche Atmo­sphäre. Einer Überhitzung im Sommer wirkt ein außen­liegender Sonnenschutz über dem Glas­first entgegen.

Ein Geschoss darunter findet sich auf ca. 116 m² Raum für den neuen Konferenz­saal. Dieser ist in der Mitte teilbar und bietet somit maximale Flexibilität. Alle großen Fensterflügel beider neuen Geschosse können geöffnet werden. Hinter der weiß verputzten Fassade befindet sich eine Mauerwerks­konstruktion aus Poroton gepaart mit einer Holzdachkonstruktion und Metalldach­deckung.

Der Entwurf stellt eine angenehm dezente Ergänzung zum Ensemble der Berlin-Brandenburgi­schen Akademie der Wissenschaften dar und ist ein gutes Beispiel für die Erweiterung um neue Konferenzsäle und eine „Wissenschaftslounge“.

In diesem Entwurf erweitert eine nachhaltige und leichte Holzkonstruktion die bestehende Bausubstanz um zwei Stockwerke, ohne zusätzliche statische Verstärkungen zu benötigen. Das Raumfachwerk besteht aus zwei verdrehten Quadratrastern, die stützenfreie Räume schaffen und die Stabilität erhöhen. Durch effiziente Strukturoptimierung mittels generativer Simulationen wird ein präziser Materialeinsatz und eine optimale Lastverteilung gewährleistet.

Das flexible Raumkonzept bietet große, offene Räume für vielfältige Nutzungen wie Konferenzräume, Lounges und Bars. Der untere Stock enthält Konferenz- und Seminarräume, die durch ein akustisches Vorhangsystem variabel kon-figuriert werden können. Ein anpassungsfähiges Innenraumdesign entsteht durch das Raumfachwerk im stützenlosen Raum und ein bewegliches Vorhangsystem, das variable Raumtrennungen erlaubt.

Die obere Etage zeichnet sich durch eine besondere Atmosphäre aus: Dreieckige, mit Sperrholz verkleidete Wände und schräge Holzbalken erzeugen intime Räume mit dynamischem geometrischem Muster. Die Innenausstattung umfasst Tische, Hocker, ein Klavier und Sofas unter diagonalen Holzbalken. Natürliches Licht fällt durch große Fenster ein und schafft eine warme, einladende Atmosphäre.

Die Fassade besteht aus langlebigem Titanzinkblech, das tragende Raumfach-werk aus Baubuche. Dieses Design bereichert die architektonische Erfahrung durch natürliches Licht und die Möglichkeit, sich innerhalb des strukturellen Rahmens zu bewegen. Die Kombination aus modernen ästhetischen Elementen und funktionaler Vielseitigkeit schafft Räume, die sowohl visuell ansprechend als auch praktisch sind.

Der Entwurf stellt eine Erweiterung für die Akademie der Wissenschaften dar, indem er durch das Zusammenspiel von Struktur und Transparenz sowohl die historische als auch die zeitgenössi­sche Architektur respektvoll miteinander vereint.

Das System aus übereinandergestapelten Balken im Wechselspiel wird durch eine Auskragung ergänzt, die von drei Stützen getragen wird. Die Konstruktion in Holz-Modulbauweise ist sowohl innen als auch außen sichtbar, wobei sich die vertikale Fassadenstruktur nach oben hin verdich­tet und einen variablen Licht­einfall ermöglicht, der durch ein Oberlicht unterstützt wird. Der opti­sche Fassadenabschluss und der flexibel gestaltbare Grundriss sorgen für eine harmonische In­tegration von Funktionalität und Ästhetik.

Nach der ersten Auseinandersetzung mit der Aufgabe standen für mich zwei Ideen fest, die ich in meinem Entwurf verwirklichen wollte. Die Aufstockung sollte den gleichen Fußabdruck wie der Bestand aufweisen. Wie bei dem im Krieg zerstörten Mittelflügel wollte ich die Aufstockung wie­der mit einem Satteldach versehen.

Mein erster Ansatz sah eine hölzerne Fassade und eine gemauerte, tragende Konstruktion vor. Die vom Erscheinungsbild vermittelte Aussage, es handele sich bei der Aufstockung um eine Holzkonstruktion, stand mit dem ge­mauerten Tragwerk im direkten Konflikt. Um diesen zu lösen, entschied ich mich dazu, auf ein massives Tragwerk zu verzichten und an Stelle dessen eine Holz-Rahmen-Konstruktion umzusetzen. Die Aufstockung verfügt über eine hölzerne Lamellen­fassade. Sie wird auf beiden ergänzten Eta­gen von sechs regelmäßig angeordneten Fenstern gegliedert.

Im 1. OG sind Seminarräume vorgesehen, welche - getrennt von einer Faltwand - bei Bedarf zu einem großen Raum zusammengeschaltet werden können. Im Stockwerk darüber soll eine Lounge realisiert werden, deren Kernstück eine Bar darstellt, die sich über zwei Drittel des Rau­mes erstreckt. Wie in der Fassade und dem Tragwerk wurde auch für das Innere Holz als Haupt­material gewählt. Wo im 1. OG nur der Fußboden sowie die Decken­balken sichtbar aus Holz be­stehen, werden in der Lounge auch die Wände sowie der Dachraum mit Holz verkleidet.

Im 2. OG verzichte ich auf eine Zwischendecke und ermögliche so den Blick auf die Sparren, welche dank Aufdämmung sichtbar sind. Dadurch öffnet sich der Raum und vermittelt ein Gefühl von Weite und Großzügigkeit. Das Dach ist mit Blech gedeckt, welches die Form und den Rhythmus der Fassade weiterführt und dem Gebäudeteil so ein homogenes äußeres Erscheinungsbild verleiht.

Auf den eingeschossigen Bestandsbau im Innenhof der Akademie der Wissenschaften in Berlin am Gendarmenmarkt werden für eine Wissenschaftslounge sowie zusätzliche Seminarräume zwei Geschosse aufgestockt. Der aufgesetzte Baukörper wird von zwei in sich ausgesteiften X-Stützenpaaren getragen und erweckt die Illusion eines schwebenden Geschosses.
Ein wilder Garten soll im Innenhof des Wissenschaftskomplexes entstehen und zu einer Oase des Verweilens und der Ruhe werden. Dabei liegt das untere Geschoss der Aufstockung zwischen den X-Stützen und lässt einen Blick in die dichte Bepflanzung des Gartens zu. Die Fensterebene in dem flexibel offen gehaltenen Raum kann vollständig geöffnet werden, sodass die Wirkung des Gartens komplett entfalten werden kann.
Im Dach des oberen Teils der Aufstockung wird das Motiv der X-Stütze für die Lichtführung wiederholt. Die Seminarräume können flexibel getrennt werden und in die Wand des Ganges sind eingebaute Regale integriert, für die Lagerung von Seminarmaterialien und Büchern.
Erschlossen werden die neuen Räumlichkeiten durch die bestehenden Treppenhäuser auf Hofseite, welche für den Aspekt der Barrierefreiheit durch einen weiteren Fahrstuhl ergänzt werden.

Kontakt
Dr. Jörg Brauns
Direktor
Direktorat
Tel.: +49 (0)30 20370 345
direktor@bbaw.de 
Jägerstraße 22/23
10117 Berlin

Sie möchten spenden?


Collegium pro Academia
Förderverein der Berlin-Brandenburgischen
Akademie der Wissenschaften e. V.

Kontoverbindung:
Commerzbank AG
BIC: DRESDEFF120
IBAN: DE58 1208 0000 4094 6412 00

© 2025 Berlin-Brandenburgische Akademie der Wissenschaften